207 111 ₽/м²
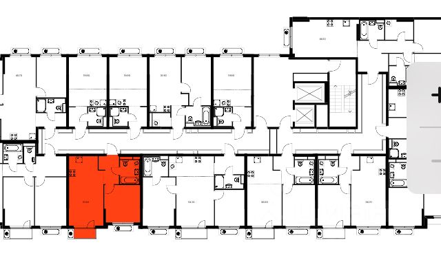
Продаётся 2-комн. квартира площадью 57,2 кв.м на 2 этаже 9 этажного дома (Корпус 4.3, Секция 3) проекта ПИК Ильинские луга. Светлый просторный подъезд на уровне земли, функциональная планировка, большие окна, предчистовая отделка. Жилой район "Ильинские луга" находится в 10 километрах от МКАД по Новорижскому шоссе, в 20 минутах на автомобиле от станций метро "Волоколамская", "Тушинская" и "Строгино". В будущем ближе к проекту, в 9 минутах пути на машине, откроется станция "Ильинская" Рублёво-Архангельской линии, которая будет соединять Арбатско-Покровскую линию и Большую кольцевую линию. Сейчас в квартале начались продажи в корпусах 3.2, 3.3, 3.4, 3.5 и 3.6. "Ильинские луга" — масштабный проект, в который входит девять детских садов, четыре школы и поликлиника. Он строится в престижном и экологичном районе среди лесов и памятников природы. За 5 минут от жилого квартала можно доехать до Рублёво-Успенского шоссе, а за 30 минут — до центра Москвы. До крупного торгового центра "РИГАМОЛЛ" всего 5 минут на автомобиле, а до ТЦ "Твой дом" и гипермаркета "Глобус" — 10 минут. В "Ильинских лугах" строятся только девятиэтажные дома — такая архитектура соответствует спокойной жизни за городом. В каждом дворе-парке есть места для отдыха, детские и спортивные площадки. А ещё, здесь уже открыт большой PlayHub "Гравити" — современное игровое пространство с космической тематикой, холмами, зонами для игр и отдыха жителей любого возраста. На первых этажах уже работают магазины, кафе и пекарни. Места для отдыха от "Ильинских лугов" тоже недалеко: 10 минут на машине — и вы в музее-усадьбе "Архангельское". Также рядом находится Лохин остров — памятник природы, где водятся речные черепахи, есть места для кемпинга и возможность сплавиться по реке. Артикул 1011995 (Застройщик ООО "СЗ "ГРАДОЛИМП") Продам квартиру в ипотеку в поселке Ильинское-Усово Московской области.







































































































