Мы используем куки-файлы. Соглашение об использовании
Онлайн-бронирование

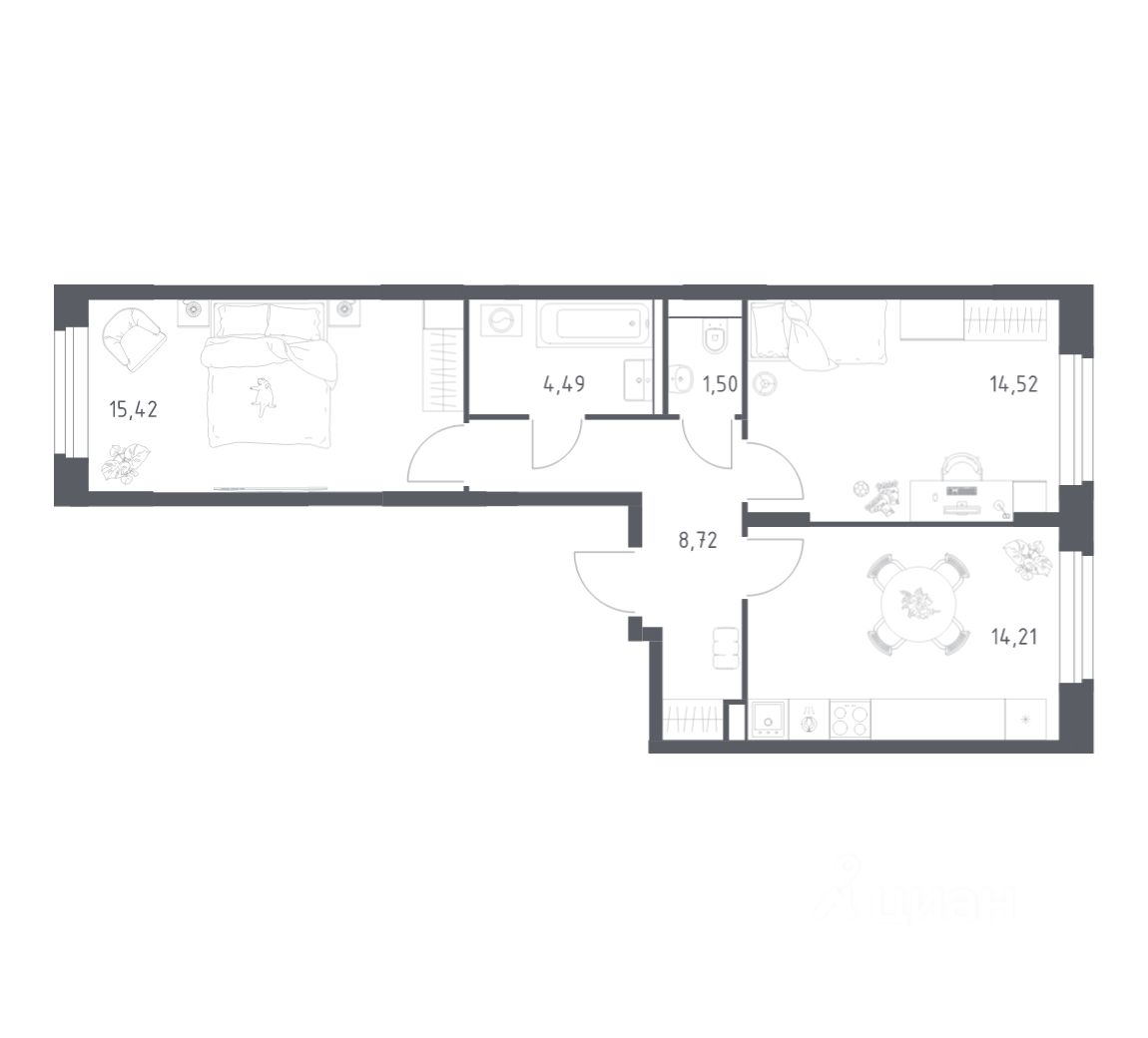
Продается 2-комн. квартира, 58,86 м²

Общая площадь58,86 м²
Жилая площадь29,9 м²
Этаж2 из 24
Год сдачи2026
ДомНе сдан
ОтделкаБез отделки
Строим кварталы для жизни с заботой о будущем. Предлагается 2-комнатная квартира комфорт-класса площадью 58,86 кв.м в корпусе 2 на 2-м этаже, в жилом комплексе "Квартал Строгино". В варианте без отделки мы установили окна и входную дверь, завели в квартиру коммуникации. Получайте ключи и начните создавать интерьер мечты в новой квартире. В варианте с предчистовой отделкой мы развели коммуникации по помещениям, выровняли и зашпаклевали стены, подготовили пол к чистовому покрытию. Ваша будущая квартира готова к финишному ремонту. Осталось выбрать, какие оттенки будут в вашем интерьере и воплотить дизайнерские идеи. В варианте с готовой отделкой мы поклеили обои под покраску, постелили полы в комнатах и санузлах, выполнили отделку стен. Установили сантехнику и межкомнатные двери, провели электрику. Это лучшее соотношение цены, качества и затраченного времени. Осталось только выбрать место для обеденного стола и удобного дивана. Приобрести квартиру возможно по специальным акциям от застройщика, с текущими условиями акций можно ознакомиться в блоке "Акций". Цена динамическая и может отличаться, уточняйте актуальность у застройщика. В жилом комплексе "Квартал Строгино" вас ждет широкий выбор досуга. Рядом МКАД и выезд на Новорижское шоссе и станции метро "Строгино" и "Мякинино". В пешей доступности — Живописная бухта, можно доехать до "Липовой Рощи" и "Серебряного бора". На территории комплекса будут 2 детских сада, школа и поликлиника. Двор-парк с площадками, велодорожками и паркингами. В лобби есть помещения для колясок. Квартиры с готовой отделкой и видом на бухту.

О квартире

Тип жилья

Новостройка

Общая площадь

58,86 м²

Жилая площадь

29,9 м²

Высота потолков

3,15 м

Отделка

Без отделки

О доме

Количество лифтов

2 пассажирских, 1 грузовой

Тип дома

Монолитный

Пандус

Есть

Понравилась квартира — узнайте о ней больше

Застройщик ответит на все вопросы

Варианты отделки в ЖК

  • Чистовая
  • Предчистовая
  • Без отделки

О ЖК «Квартал Строгино»

  • Сдача комплекса
    Сдача в 2026—2028
  • Застройщик
    Группа Самолет
  • Класс
    Комфорт
  • Тип дома
    Монолитно-кирпичный
  • Парковка
    Подземная, отдельная многоуровневая
  • Отделка
    Без отделки, предчистовая, чистовая
  • Тип комплекса
    Жилой комплекс
Похоже на то, что вы ищете?

Особенности жилого комплекса

  • Отделка

  • Парковка

  • Внутренний двор

  • Парки

  • Архитектура

  • Входная группа

  • Лифт

Подробнее о жилом комплексе

Акции в ЖК «Квартал Строгино»

Узнайте про персональные условия и дополнительные скидки при покупке квартиры у застройщика
logo

Скидка до -15% всем. Без исключений

Выгодно
logo

Квартиры со скидкой 15%

Рассрочка с фиксированным платежом

logo

Выгода до 11% за 100% оплату

logo

Скидка для военных 3%

Материнский капитал

Мебельные сеты

Материнский капитал

Трейд-ин -4%

Самолет. Бонус

Выгода до 180000 руб.

Ипотечный калькулятор
  • Базовая
  • Семейная
  • ИТ-ипотека
  • 20%
  • 30%
  • 40%
  • 50%
лет
  • 10 лет
  • 20 лет
  • 30 лет
Загружаем предложения от застройщика и банков
Корпус проверен наш.дом.рф
Обновлено 16 апреля 2026
  • Нет в реестре проблемных объектов
  • Застройщик не банкрот
  • Есть эскроу счёт
  • Актуальные фото стройки

Ещё квартиры в жилом комплексе

287 квартир в продаже · Сдача в 2026—2028
ЗастройщикГруппа Самолет
Год основания: 2012
Строится: 272 дома в 61 ЖК
21 879 675 ₽
100% оплата
logo
Скидка до -15% всем. Без исключенийАкция от застройщика
Цена за метр
371 724 ₽/м²
Условия сделки
долевое участие (214-ФЗ)